Prodej bytu 1 + 1, 53 m2, Prostějov
Kotkova, Prostějov, Prostějov Mapa
3 100 000 CZK
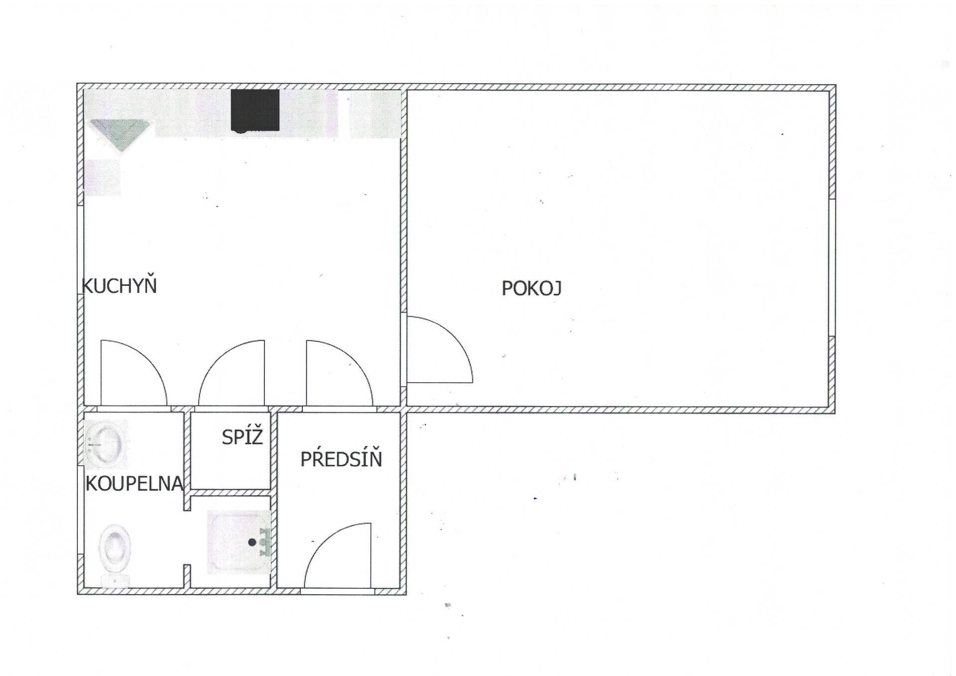
Nabízíme k prodeji byt o dispozici 1 + 1 na ulici Kotkova v Prostějově. Rohový dvoupodlažní cihlový dům obsahuje osm bytových jednotek. Převodem do osobního vlastnictví byly zahájeny stavební práce na nemovitosti - fasáda, plastová okna. V současné době se dokončuje oprava střechy, proběhne výměna vstupních dveří do domu, rekonstrukce sklepních prostor. Prostorný, světlý byt se nachází ve zvýšeném přízemí, orientace na východ. K bytu náleží sklep o velikosti 6 m2 a podíl na společném dvorku za domem. Byt prošel celkovou rekonstrukcí - nové rozvody, stoupačky, stěny, podlaha, obklady, kuchyňská linka. Kuchyň - 16 m2 Pokoj - 21 m2 Předsíň - 4,4 m2 Koupelna - 3,9 m2 Spíž - 1,3 m2 Měsíční náklady: 2.087,- Ke (fond oprav, voda, el.en.společných prostor, úklid), el.en. - 930,- Kč, plyn - 1.820,- Kč
  • Číslo zakázky:N00153
  • Dispozice1+1
  • Číslo podlaží v domě1
  • Počet nadzemních podlaží objektu2
  • Celková plocha47 m²
  • Druh objektuCihlová
  • Stav objektuDobrý
  • VlastnictvíOsobní
  • Druh bytuV nájemním domě (činžovním)
  • Typ nemovitostiByty
  • Charakter okolní zástavbyObytná
  • K nastěhování1. 10. 2025
  • Užitná plocha46 m²
  • Počet podlaží pod zemí1
  • SklepAno (6 m²)
  • Umístění objektuKlidná část obce
  • Výška stropu2,95
  • Energetická náročnost budovyG