Prodej RD Ohrozim, 5 + 1
Ohrozim, Prostějov Mapa
13 200 000 CZK
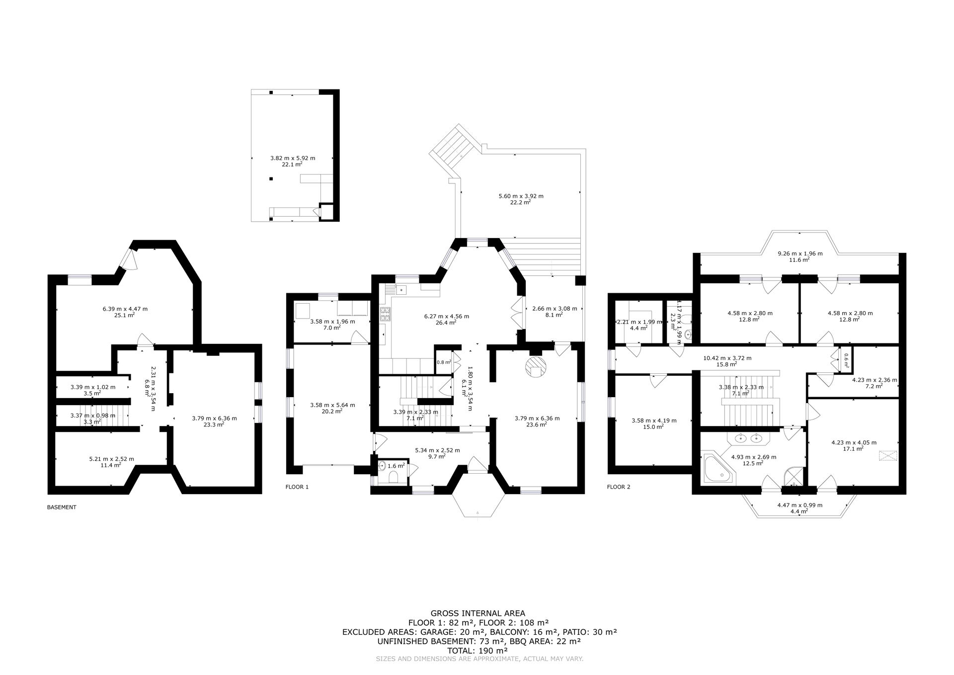
Nabízíme k prodeji samostatně stojící rodinný dům v obci Ohrozim, 8 km západně od Prostějova. Podsklepená budova s jedním nadzemním podlažím a obytným podkrovím o dispozici 5 + 1. Dům leží v klidné části obce, v neprůjezdné ulici. Obdélníkový mírně svažitý pozemek (1107 m²) s orientací na východní stranu. Vytápění: plynový kondenzační kotel, krbová kamna Obecní vodovod Kanalizace: ano Poctivá, cihlová a zateplená stavba z roku 2006, dům z rukou prvních majitelů. Poloha domu, zahrada, terasa, venkovní gril, garáž, parkovací stání, spousta úložného prostoru – to vše činí nabídku zajímavou.
  • Číslo zakázky:N00162
  • Poloha objektuSamostatný
  • Počet nadzemních podlaží objektu3
  • Užitná plocha144 m²
  • Plocha parcely1 107 m²
  • Druh objektuCihlová
  • Stav objektuVelmi dobrý
  • VlastnictvíOsobní
  • Typ nemovitostiDomy a vily
  • BalkonAno
  • Charakter okolní zástavbyObytná
  • GarážAno
  • Užitná plocha v podkroví90 m²
  • Užitná plocha v přízemí54 m²
  • Zastavěná plocha140 m²
  • SklepAno
  • TerasaAno
  • Typ domuPatrový
  • Umístění objektuKlidná část obce
  • Energetická náročnost budovyD